Back to Floor Plans
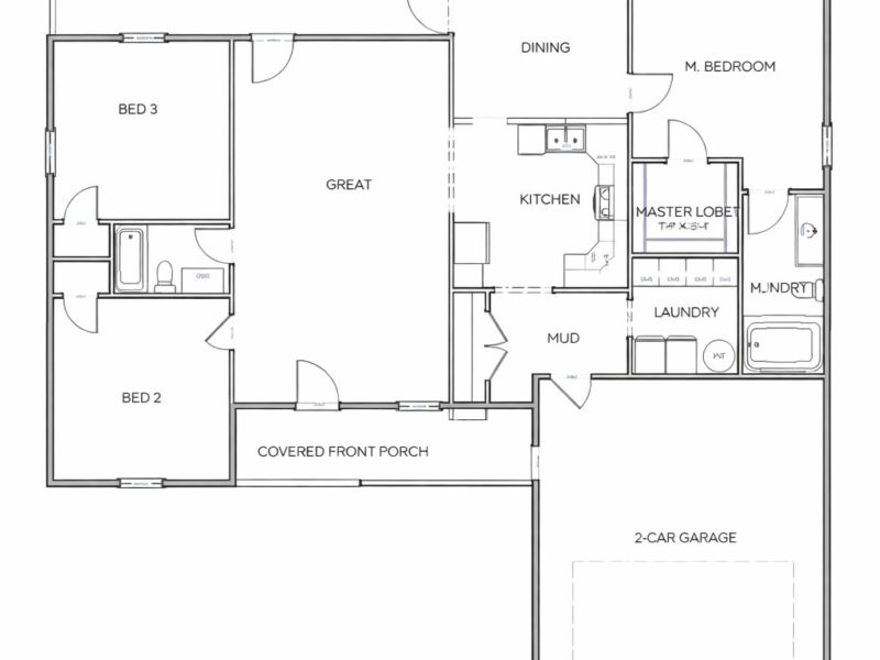
The Lancaster
Beds
3
Baths
2
Square Feet
1,788
About This Plan
The Lancaster
Appealing 3-Bedroom, 2-Bath Home with Ample Garage Space
Enjoy comfortable living in this attractive 3-bedroom, 2-bath residence. Boasting a generous 1,788 square feet of thoughtfully planned living space, this home is ideal for both families and entertaining. The roomy two-car garage and inviting front porch provide excellent outdoor relaxation options, while an additional back porch enhances your leisure possibilities. With its modern amenities and warm, welcoming character, this property presents a fantastic choice for buyers looking for a stylish yet practical home. The open layout creates a spacious, airy feel throughout.
Interested in The Lancaster?
Contact us to learn more about this floor plan, discuss customization options, or schedule a consultation with our team.