Back to Floor Plans
The KC
Beds
3
Baths
2
Square Feet
1,674
About This Plan
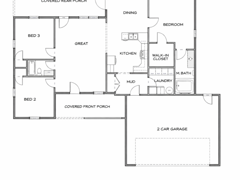
The KC
Attractive 3-Bedroom, 2-Bath Home with Spacious Garage
Step into this appealing 3-bedroom, 2-bath home that offers both comfort and practicality. With a spacious layout and a large two-car garage, this property provides ample room for families and guests. The inviting front porch creates a perfect spot for outdoor relaxation, while modern touches blend seamlessly with classic charm for a truly welcoming atmosphere.
Interested in The KC?
Contact us to learn more about this floor plan, discuss customization options, or schedule a consultation with our team.