SH Gordon Homes Logo
Back to Floor Plans

The Gordon

Beds

5

Baths

3.5

Square Feet

4,500

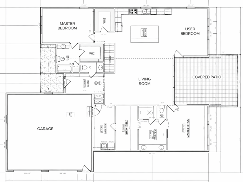
Introducing an impressive 4500 sq ft two-story home plan designed for modern family living and gracious entertaining. The upper level features two luxurious master suites, each with its own massive walk-in closet, providing private retreats with ample storage. Downstairs you will find three additional bedrooms for kids, guests, or a home office, ensuring plenty of space for everyone. The walkout basement adds versatility with a huge custom-built tornado shelter room, plus endless potential for recreation, storage, or future finishing. The heart of the home is a large, open-concept gathering area flooded with natural light from abundant windows, seamlessly connecting to the kitchen and a large walk-in pantry. Step outside to an extra-large cathedral-style covered back porch, perfect for outdoor living and entertaining year-round. This plan pairs practicality with upscale amenities, delivering bright, inviting spaces and thoughtful comforts for every day and special occasions.

About This Plan

The Gordon

Impressive 4500 sq ft two-story home plan designed for modern family living and gracious entertaining

Introducing an impressive 4500 sq ft two-story home plan designed for modern family living and gracious entertaining. The upper level features two luxurious master suites, each with its own massive walk-in closet, providing private retreats with ample storage. Downstairs you will find three additional bedrooms for kids, guests, or a home office, ensuring plenty of space for everyone. The walkout basement adds versatility with a huge custom-built tornado shelter room, plus endless potential for recreation, storage, or future finishing. The heart of the home is a large, open-concept gathering area flooded with natural light from abundant windows, seamlessly connecting to the kitchen and a large walk-in pantry. Step outside to an extra-large cathedral-style covered back porch, perfect for outdoor living and entertaining year-round. This plan pairs practicality with upscale amenities, delivering bright, inviting spaces and thoughtful comforts for every day and special occasions.

Key features:
- 4500 sq ft, two-story design
- Upstairs: two master suites with oversized walk-in closets
- Downstairs: three additional bedrooms
- Walkout basement with a large custom tornado shelter room
- Extra-large cathedral-style covered back porch
- Large walk-in pantry
- Open floor plan with a spacious gathering area
- Abundant windows for natural light throughout

Interested in The Gordon?

Contact us to learn more about this floor plan, discuss customization options, or schedule a consultation with our team.